Eschenbach Construction Co.
Quality Designs, Hardwoods, Furniture & Cabinetry from Guatemala
Site Navigation
[Skip]
Home
Designer
Lumber Sales
Cabinets, Doors & Windows
Furniture
EspaƱol
Contact Info
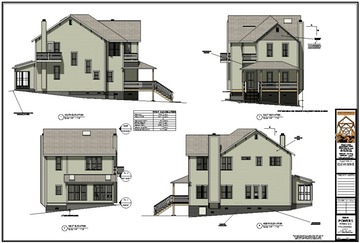
Powers Elevations
Next
List
Return
to Home
[Back To Top]