The River House
The most beautiful lake on earth
Site Navigation
[Skip]
Home Page
Original condition
Site Cleanup
River Repairs
The Crew
Floorplans
2009 Construction
Mike and Salli's House
Rental Properties
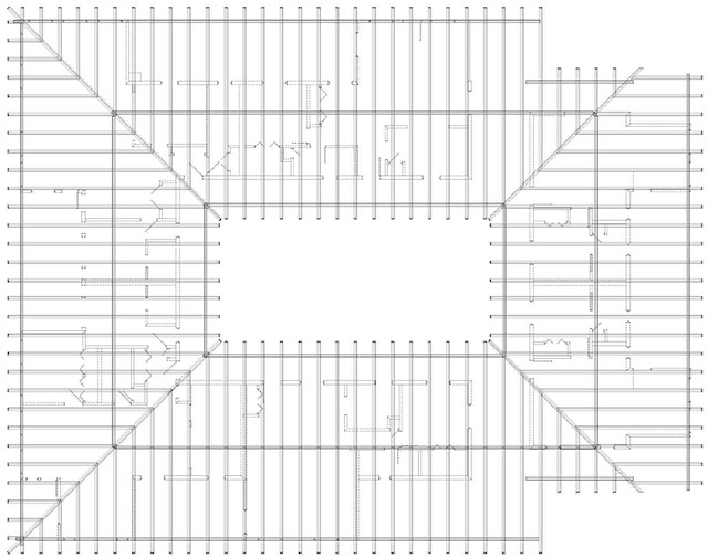
Pana 6.03, Roof Plan
Previous
List
[Back To Top]